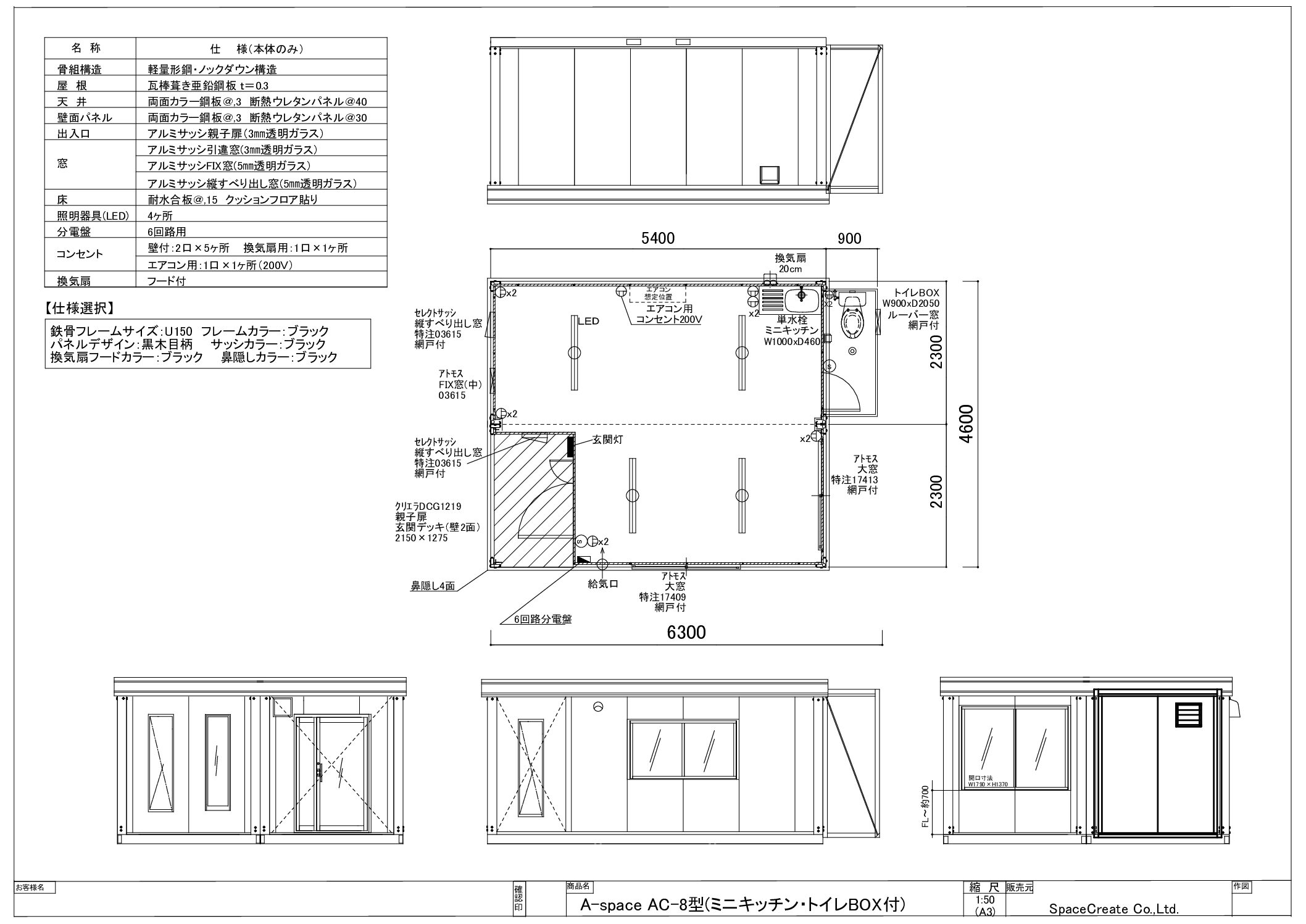
A-spaceチョイス型オリジナルユニットハウス

AG-8型(ミニキッチン・トイレBOX付)
設置日
2025.10.31
用途
事務所・休憩室
場所
和歌山県和歌山市

2025.10.31 アウトレットユニットハウス7.5坪(15畳)タイプを、事務所として設置しました。

和歌山県和歌山市のN社に、A-space AG-8型(ミニキッチン・トイレBOX付)を事務所として採用していただきました。

”新事務所を設立するのでブラックを基調とした、デッキ付ユニットハウスをオーダー出来ないか”とご相談いただきました。

実際のサイズやカラーなど仕様を確認いただくために、最寄りの展示場へ来場いただき、詳細の設置計画を打ち合わせいたしました。

従業員数や配置予定、インテリアなどをお伺いし、内観の仕上がりイメージが明瞭となるパース図面を用いてご提案いたしました。

玄関デッキの凹み部分やミニキッチンにより室内が狭く感じられることから、トイレは室内から入室可能な外付BOXタイプを採用しました。

設置当日は生憎の天候でしたが、ユニットハウスは過剰な悪天候でない限り予定通りの設置が可能です。

電気・上下水道の接続はお客様に手配いただきました。

※雨天作業時でも室内清掃は入念に行っております。

※価格情報は設置当時の価格です。

価格情報

工事内容 金額
本体価格 2,446,000円
オプション 933,000円
工事・運搬費 228,840円
その他 63,000円
合計 3,670,840円
(税込 4,037,924円)
営業時間 AM 9:00~PM 5:00
※日曜・祝日は定休日