A-spaceチョイス型オリジナルユニットハウス
AC-12型
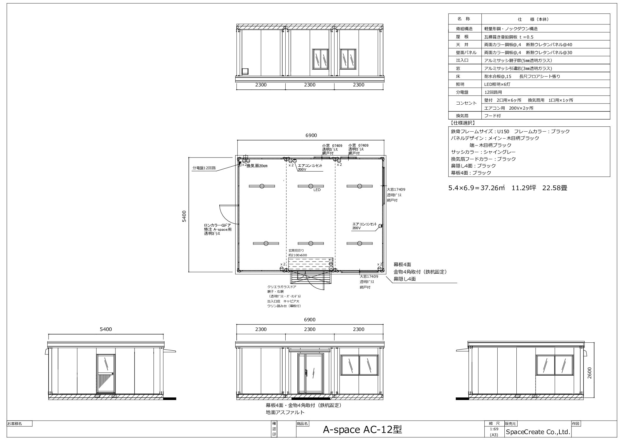
2025.11.5 アウトレットユニットハウス11.3坪(22.6畳)タイプを、事務所として設置しました。
大阪府泉佐野市のH社に、A-space AC-12型を事務所として採用していただきました。
“既存事務所を増設したい”とご連絡いただきました。
使用されていた事務所は、以前弊社でご購入いただいていたユニットハウスであり、土地の形状から今回は隣接する形での設置となりました。
正面出入口とは別に勝手口を設けており、従業員の使いやすさを考慮した間取りとなっております。
海風が強い土地でしたので、ユニットハウス土台の角4ヶ所に杭打ち養生工事を施工し、耐風性能にも優れた事務所となりました。
※価格情報は設置当時の価格です。
価格情報
| 工事内容 | 金額 |
|---|---|
| 本体価格 | 3,268,000円 |
| オプション | 565,500円 |
| 工事・運搬費 | 352,300円 |
| その他 | 78,000円 |
| 合計 | 4,263,800円 (税込 4,690,180円) |
間取り図

