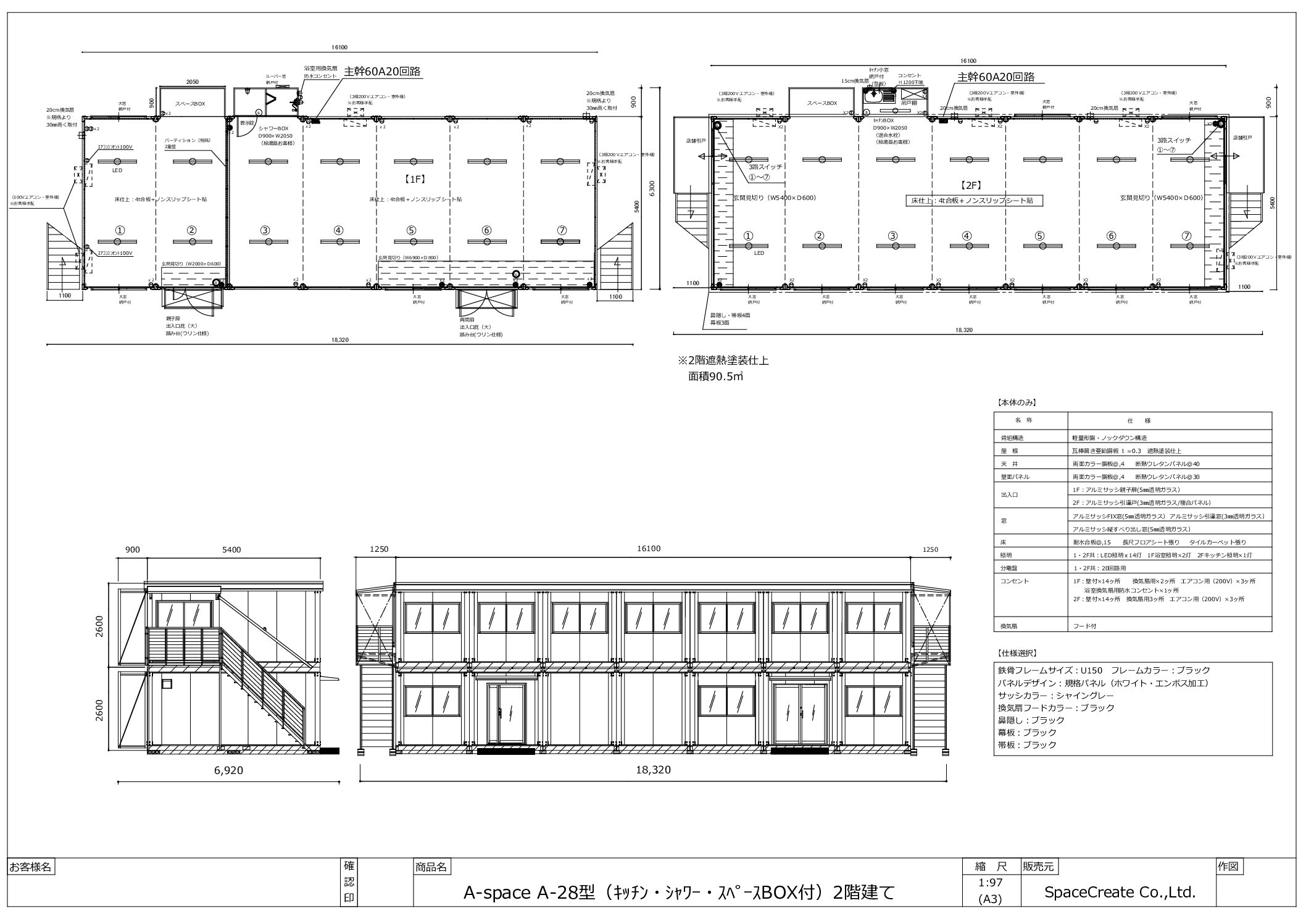
A-spaceチョイス型オリジナルユニットハウス
A-28型2階建て シャワー・キッチン・スペースBOX付
2022.10.17 ユニットハウス26.6坪(53畳)2階建て シャワー・キッチン・スペースBOX付を、会議室・食堂・更衣室として設置しました。
大阪府の鋼管製造会社様に、A-space A-28型2階建て(シャワー室・キッチン・スペースBOX付)を会議室・食堂・更衣室として採用頂きました。
長年使用していた既存のユニットハウスが老朽化し、社員が増え手狭になった事をきっかけに、建物を建て替えたいとの相談をいただきました。
既存のユニットハウスを解体し、新たにユニットハウスA-spaceを採用して頂きました。
社員達が明るいスペースで過ごせるよう、床シートの色にはこだわりました。
お客様、給排水・電気工事業者と、作業工程を念入りにお打ち合わせした為スムーズに完工しました。
ユニットハウスの設置は、2日間10tレッカーを使用して設置しました。3日目は、残作業程度で終了。
お客様は設置の早さに驚き、喜んでいただきました。
電気・給排水設備工事はお客様が手配しております。
※価格情報は設置当時の価格です。
価格情報
| 工事内容 | 金額 |
|---|---|
| 本体価格 | 12,669,000円 |
| オプション | 6,789,440円 |
| 工事・運搬費 | 1,473,090円 |
| その他 | 475,600円 |
| 合計 | 21,407,130円 (税込 23,547,843円) |
間取り図

