A-spaceチョイス型オリジナルユニットハウス
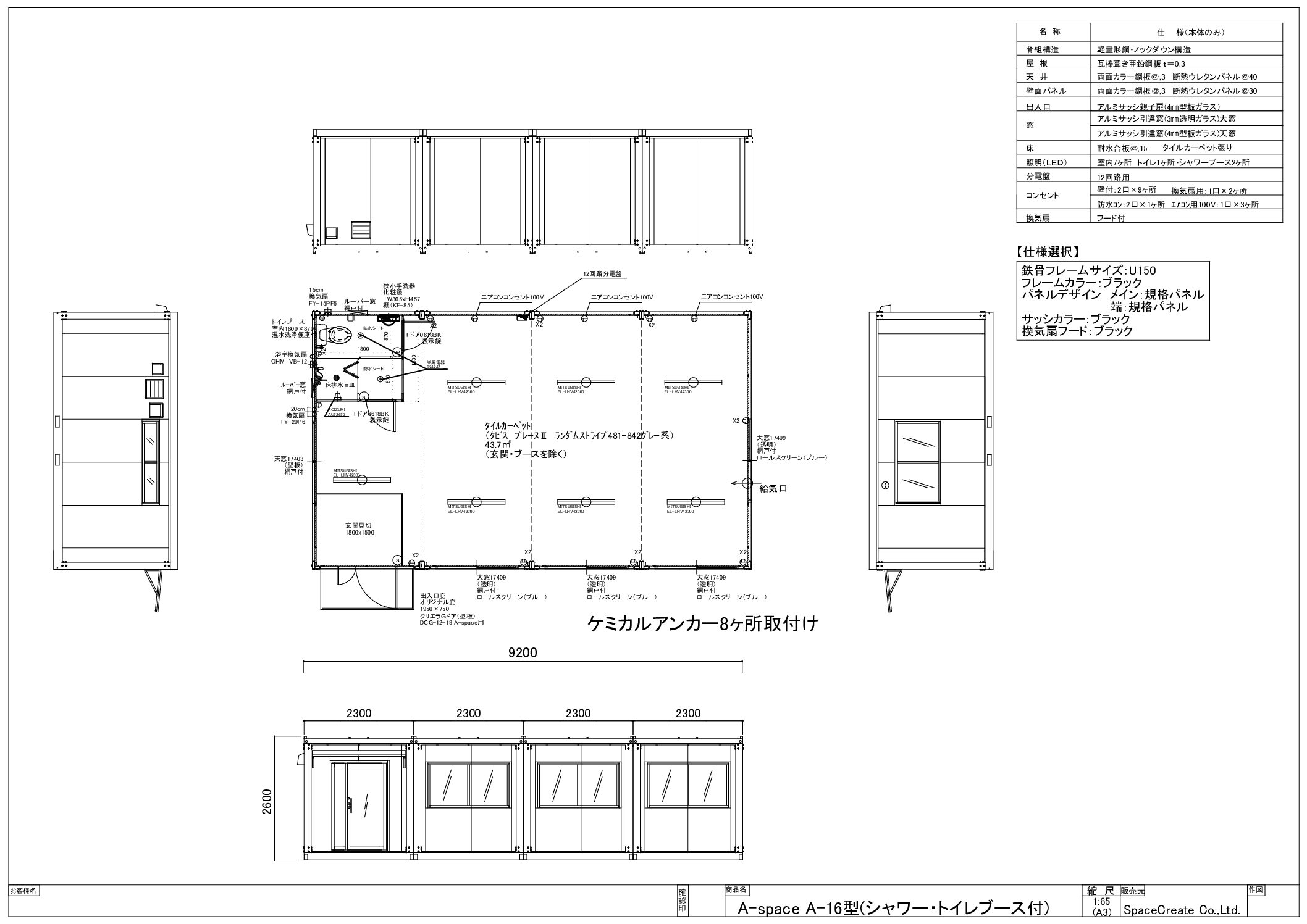
A-16型(トイレ・シャワーブース付)
2025.10.30 アウトレットユニットハウス15.1坪(30.2畳)タイプを、事務所として設置しました。
栃木県のF社にA-space A-16型(トイレ・シャワーブース付)を事務所として採用していただきました。
”和歌山県に新しく事業所を設立する計画があり、希望の間取りをオーダー出来ないか”と希望図面を持参のうえ来店いただきました。
産業機械等を取り扱う事業所なので、汚れが付きやすいことから従業員が使うシャワー室を併設したいとのご要望でした。
新設計画は十分に余裕のあるスケジュールでしたので、現地でのお打ち合わせを重ね、シンプルながらも機能性を備えたレイアウトを選択いただきました。
玄関と水回りスペースには防水シートを施工し、室内には全面タイルカーペットを後日施工しました。
電気・上下水道の接続はお客様に手配いただきました。
※価格情報は設置当時の価格です。
価格情報
| 工事内容 | 金額 |
|---|---|
| 本体価格 | 3,993,000円 |
| オプション | 1,306,480円 |
| 工事・運搬費 | 363,200円 |
| その他 | 1,114,000円 |
| 合計 | 6,776,680円 (税込 7,454,348円) |
間取り図

